Používame cookies

Súbory cookie a ďalšie technológie sledovania používame na zlepšenie vášho zážitku z prehliadania našich webových stránok, na to, aby sme vám zobrazovali prispôsobený obsah a cielené reklamy, na analýzu návštevnosti našich webových stránok a na pochopenie toho, odkiaľ naši návštevníci prichádzajú. Viac info

 

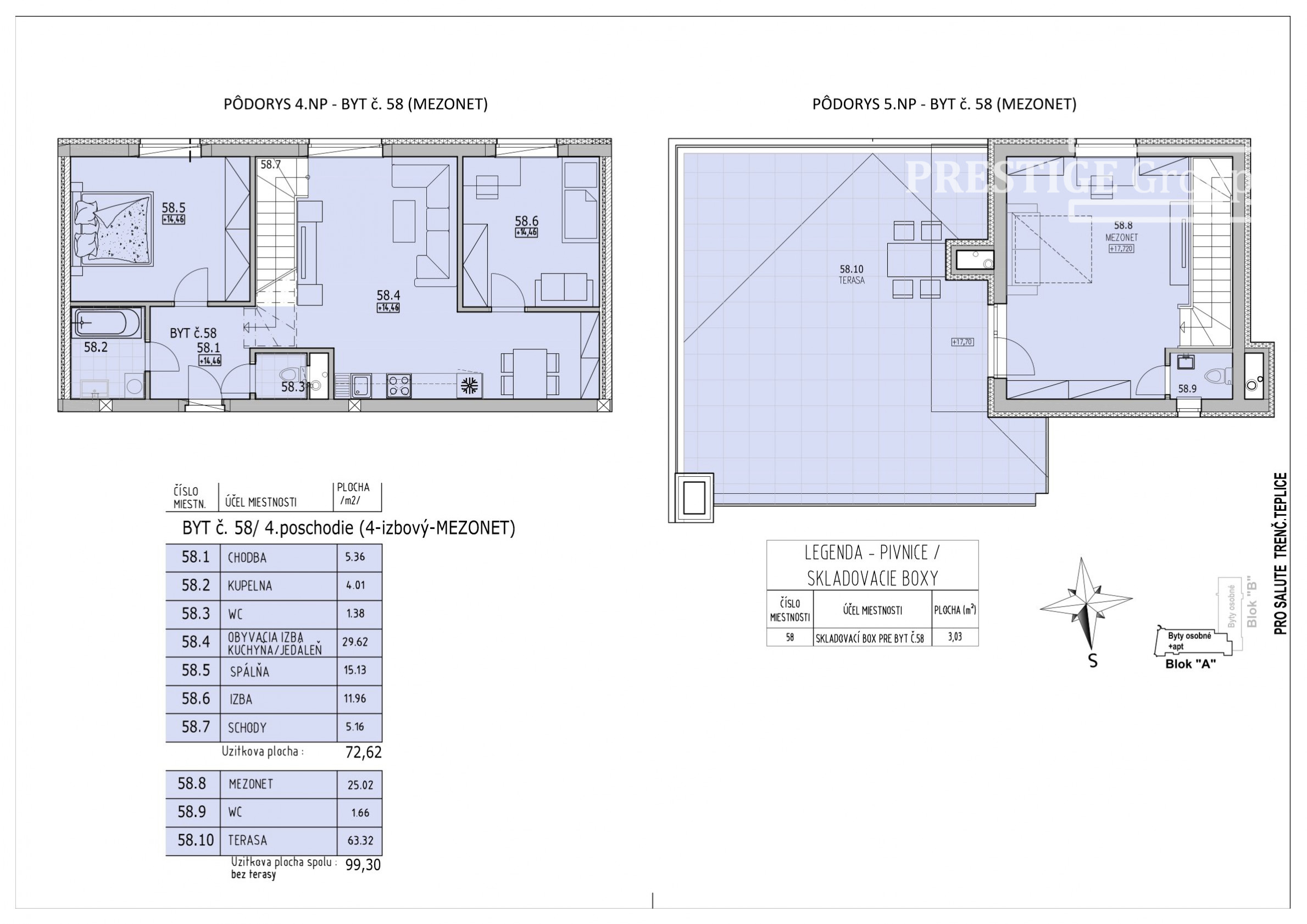
4-izbový mezonet Rezidencia THERMAE so strešnou terasou!

Ulica: Hviezdoslavova 3
Obec: Trenčianske Teplice
Okres: Trenčín
Kraj: Trenčiansky kraj
Druh: Byty
Typ: Predaj
Typ bytu: 4-izbový byt
Iné:
399 000 €

Popis nehnuteľnosti

TOP PONUKA  - Jediný 4-izbový mezonet v Rezidencii THERMAE s veľkou strešnou terasou!


Byt 58 - 4 izbový mezonet s terasou | Trenčianske Teplice
Hviezdoslavova ulica | 4./5. poschodie | Celková výmera: 165,65 m²


Predstavujeme vám výnimočný mezonetový byt v srdci kúpeľného mesta Trenčianske Teplice - súčasť prestížneho projektu Rezidencia THERMAE, ktorý spája funkcionalistickú architektúru s moderným komfortom.

Hlavné prednosti:

  • 4 priestranné izby rozložené na dvoch podlažiach
  • Veľká strešná terasa (63,32 m²) s nádherným výhľadom na okolie
  • Novostavba s výťahom, pivnicou a vyhradeným parkovaním
  • internet - optika

Tento byt je ideálny pre tých, ktorí hľadajú pokojné bývanie s atmosférou kúpeľného mesta, no zároveň nechcú robiť kompromisy v priestore, výhľade ani štýle.

Pôdorys a viac informácií nájdete na: www.rezidenciathermae.sk/byt-58

Kontakt: 0907 163 009
www.rezidenciathermae.sk

Vlastnosti

Status:
aktívne
Vlastníctvo:
korporácia
Úžitková plocha:
165.65 m2
Zastavaná plocha:
165.65 m2
Podlahová plocha:
100 m2
Skladová plocha:
3 m2
Stav:
novostavba
Počet izieb:
4
Energetický certifikát:
B
Energetická náročnosť budovy:
Energetický ekonomický
Typ budovy:
tehla
Typ výbavy:
holopriestor
Terasa:
áno
Pivnica:
áno
Sklad:
áno
Výťah:
áno
Rok výstavby:
2023
Rok kolaudácie:
2025
Počet poschodí od prízemia vyššie:
5
Pozícia:
posledné poschodie
Poschodie:
4
Celková plocha:
165.65 m2
Terasa plocha:
63.32 m2
Počet terás:
1
Pivnica plocha:
3 m2
Počet pivníc:
1
Počet vonkajších parkovacích miest:
1
Cena vonkajších parkovacích miest:
8000 €
Orientácia:
juh
Inžinierske siete:
áno
Voda:
áno
Elektrika:
áno
Kanalizácia:
áno
Voda - na pozemku:
áno
Elektrika - na pozemku:
áno
Elektrika - na pozemku - 230 V:
áno
Kanalizácia - na pozemku - kanalizácia:
áno
Vykurovanie - centrálne:
áno
Optická sieť:
áno

Informatívna úverová kalkulačka

Pozrieť na mape

Maklér

Radi Vám poradíme

Podobné nehnuteľnosti