
- Centrum
Ulica: | Hviezdoslavova 1 |
---|---|
Obec: | Trenčianske Teplice |
Okres: | Trenčín |
Kraj: | Trenčiansky kraj |
Druh: | Byty |
Typ: | Predaj |
Typ bytu: | 3-izbový byt |
Iné: |
Rezidencia Thermae: Štýl, pohodlie, a vy - dokonalá harmónia pre Vaše bývanie. ✨ Byt 52 v projekte "Rezidencia Thermae" je presne to, čo potrebujete!
Ponúkame vám 3-izbový byt na 2 poschodí s celkovou výmerou 79,27 m2, ktorý je dokonalým spojením pohodlia a štýlu. Nechajte sa uniesť moderným bývaním, kde každý detail bol navrhnutý s ohľadom na vaše pohodlie a spokojnosť. Pre viac informácií navštívte našu webovú stránku a objavte všetky možnosti, ktoré "Rezidencia Thermae" ponúka. Nečakajte, váš nový domov na vás čaká!
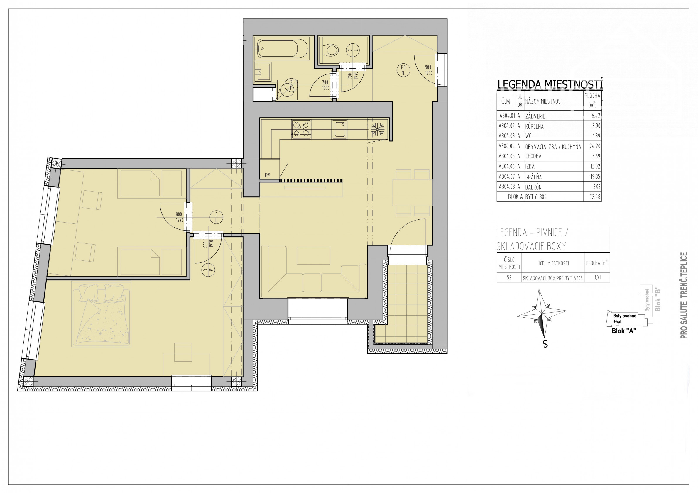
Byt 52
3 izby , 2 poschodie, balkón 3,08 m2, pivnica 3,71 m2 celková výmera 79.27 m2
Byt 56 : https://www.rezidenciathermae.sk/byt-52/
Celú ponuku nájdete na :
www.rezidenciathermae.sk
PREDSTAVUJEME PROJEKT "REZIDENCIA THERMAE" - VÝNIMOČNÉ BÝVANIE V SRDCI KÚPEĽNÉHO MESTA
Rezidencia THERMAE ponúka rekonštrukciu, prístavbu a nadstavbu budovy v známom kúpeľnom meste Trenčianske Teplice. Tento jedinečný objekt je atraktívnou stavbou s výrazne funkcionalistickým vzhľadom, ktorý dotvárajú lukratívne terasy nad ustúpenými časťami podlaží. Nachádza sa v priamom susedstve kúpeľov, na okraji pešej zóny a ponúka miesto pre bežný život aj pre relax.
Cena : 200.875 € - Byt 52
Informácie: 0907 163 009
Lorem Ipsum is simply dummy text of the printing and typesetting industry. Lorem Ipsum has been the industry's standard dummy text ever since the 1500s, when an unknown printer took a galley of type and scrambled it to make a type specimen book. It has survived not only five centuries, but also the leap into electronic typesetting, remaining essentially unchanged. It was popularised in the 1960s with the release of Letraset sheets containing Lorem Ipsum passages, and more recently with desktop publishing software like Aldus PageMaker including versions of Lorem Ipsum.