Používame cookies

Súbory cookie a ďalšie technológie sledovania používame na zlepšenie vášho zážitku z prehliadania našich webových stránok, na to, aby sme vám zobrazovali prispôsobený obsah a cielené reklamy, na analýzu návštevnosti našich webových stránok a na pochopenie toho, odkiaľ naši návštevníci prichádzajú. Viac info

 

3‑izbový byt v novostavbe – zariadený, balkón, garáž

Ulica: Tramínová
Mestská časť: Zlatovce
Obec: Trenčín
Okres: Trenčín
Kraj: Trenčiansky kraj
Druh: Byty
Typ: Predaj
Typ bytu: 3-izbový byt
Iné:
260 000 €

Popis nehnuteľnosti

Kompletne zariadený 3‑izbový byt v modernej novostavbe Rezidencia Vinohrady. Svetlý, elegantný, s veľkým balkónom orientovaným do tichého vnútrobloku. Ideálny pre tých, ktorí chcú bývať bez investícií a v nadštandardnom prostredí.

Hlavné benefity

  • Moderná novostavba s vysokým štandardom
  • Veľký balkón orientovaný do tichého vnútrobloku
  • Kompletné zariadenie v cene – nábytok, kvalitné spotrebiče
  • Priestranná kúpeľňa so sprchovým kútom
  • Samostatné WC
  • Výťah a bezbariérový prístup

Možnosť kúpy samostatnej uzamykateľnej garáže (19,28 m²) v suteréne , cena 45.000,-€.

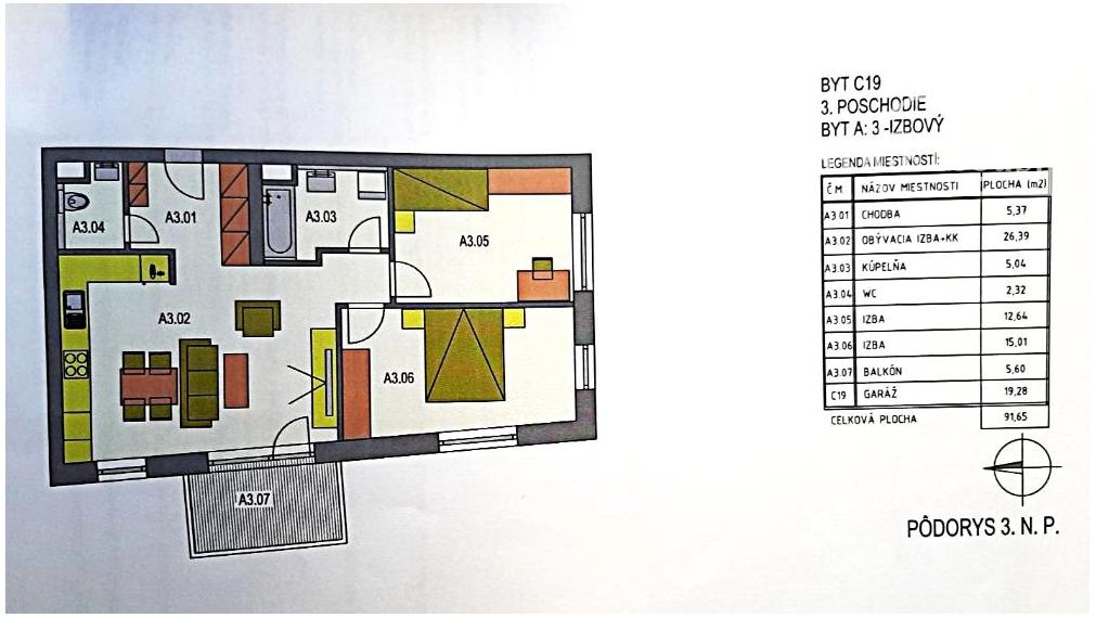
Dispozícia - Byt ponúka vzdušnú dennú zónu s kuchyňou na mieru, jedálenským stolom a obývačkou s výstupom na balkón. Dve samostatné spálne poskytujú dostatok súkromia. Kúpeľňa je vybavená moderným sprchovým kútom a kvalitnou sanitou, WC je oddelené.

  • Chodba: 5,37 m²
  • Obývačka + kuchyňa: 26,39 m²
  • Balkón: 5,60 m²
  • Izba 1: 12,64 m²
  • Izba 2: 15,01 m²
  • Kúpeľňa: 5,04 m²
  • WC: 2,32 m²
  • Garáž: 19,28 m²

Lokalita - Tramínová ulica v Trenčíne patrí k rezidenčnému projektu Rezidencia Vinohrady, ktorý je jedným z najnovších a najkvalitnejších projektov v mestskej časti Zlatovce.

Obchody a potraviny

  • BILLA Zlatovce – najbližší veľký supermarket
  • Obchody - Dobrota Vinohrady – menšie potraviny priamo pri projekte, pekáreň, lekáreň, kvetinárstvo, predajňa rýb a mäsaVicena – lokálny obchod so zmiešaným tovarom

Reštaurácie a gastro

  • Bosco Restaurant & Bowling – reštaurácia + bowling (cca 2 min pešo)
  • Menšie bistrá a donášky v okolí Zlatoviec

Zdravotníctvo

  • Lekáreň Vinohrady – priamo pri projekte
  • Zdravotné stredisko Zlatovce – dostupné do 10–12 min pešo

Balíkomaty

  • AlzaBox – priamo v zóne Vinohrady
  • Packeta boxy – v okolí Zlatoviec (5 min)

Doprava

  • Autobusová zastávka Vinohrady – 3 min
  • rýchly výjazd na diaľnicu
  • Cyklotrasa smer centrum / Opatová

Voľný čas a rodina

  • detské ihrisko roi dome
  • Bejzbalové ihrisko – 5 min
  • Zelené plochy a výbeh pre psy

Dostupné služby autom

  • 3 min LIDL
  • 5 min  Kaufland
  • 5 min centrum

Cena - Byt so zariadením: 260.000,-€, Samostatná garáž: 45.000 €
Cena zodpovedá kvalite projektu, kompletnému zariadeniu a žiadanej lokalite v rámci Trenčína.

Informácie : PRESTIGE Group / 0907 163 009

 

Vlastnosti

Status:
aktívne
Vlastníctvo:
osobné
Úžitková plocha:
73 m2
Zastavaná plocha:
73 m2
Podlahová plocha:
68 m2
Stav:
novostavba
Počet izieb:
3
Energetický certifikát:
B
Energetická náročnosť budovy:
Energetický ekonomický
Typ budovy:
tehla
Typ výbavy:
kompletne vybavený
Balkón:
áno
Rok výstavby:
2020
Rok kolaudácie:
2021
Počet poschodí od prízemia vyššie:
4
Pozícia:
vyššie poschodie
Poschodie:
3
Celková plocha:
73 m2
Plocha balkóna:
6 m2
Počet balkónov:
1
Orientácia:
juhozápad
Vykurovanie - centrálne:
áno
Internet:
áno
Optická sieť:
áno

Informatívna úverová kalkulačka

Pozrieť na mape

Maklér

Radi Vám poradíme

Podobné nehnuteľnosti