
- Centrum
Ulica: | Hviezdoslavova 3 |
---|---|
Obec: | Trenčianske Teplice |
Okres: | Trenčín |
Kraj: | Trenčiansky kraj |
Druh: | Byty |
Typ: | Predaj |
Typ bytu: | 4-izbový byt |
Iné: |
TOP PONUKA - Jediný 4-izbový mezonet v Rezidencii THERMAE s veľkou strešnou terasou!
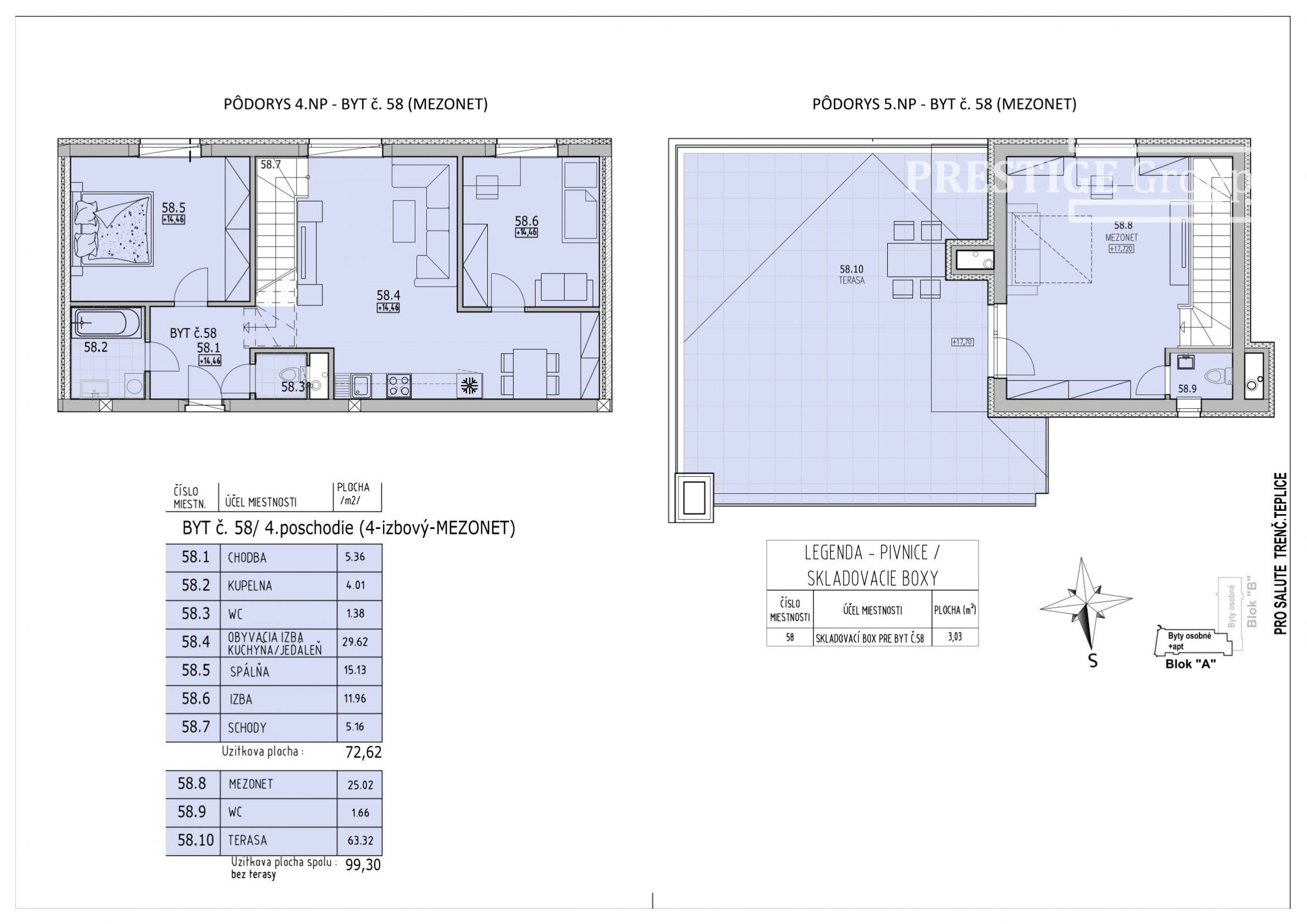
Byt 58 - 4 izbový mezonet s terasou | Trenčianske Teplice
Hviezdoslavova ulica | 4./5. poschodie | Celková výmera: 165,65 m²
Predstavujeme vám výnimočný mezonetový byt v srdci kúpeľného mesta Trenčianske Teplice - súčasť prestížneho projektu Rezidencia THERMAE, ktorý spája funkcionalistickú architektúru s moderným komfortom.
Hlavné prednosti:
Tento byt je ideálny pre tých, ktorí hľadajú pokojné bývanie s atmosférou kúpeľného mesta, no zároveň nechcú robiť kompromisy v priestore, výhľade ani štýle.
Pôdorys a viac informácií nájdete na: www.rezidenciathermae.sk/byt-58
Kontakt: 0907 163 009
www.rezidenciathermae.sk
Lorem Ipsum is simply dummy text of the printing and typesetting industry. Lorem Ipsum has been the industry's standard dummy text ever since the 1500s, when an unknown printer took a galley of type and scrambled it to make a type specimen book. It has survived not only five centuries, but also the leap into electronic typesetting, remaining essentially unchanged. It was popularised in the 1960s with the release of Letraset sheets containing Lorem Ipsum passages, and more recently with desktop publishing software like Aldus PageMaker including versions of Lorem Ipsum.