Používame cookies

Súbory cookie a ďalšie technológie sledovania používame na zlepšenie vášho zážitku z prehliadania našich webových stránok, na to, aby sme vám zobrazovali prispôsobený obsah a cielené reklamy, na analýzu návštevnosti našich webových stránok a na pochopenie toho, odkiaľ naši návštevníci prichádzajú. Viac info

 

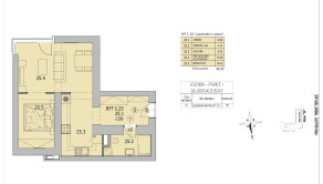
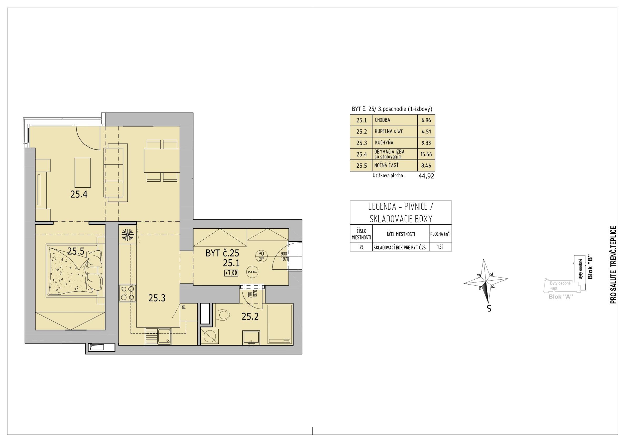
1 izbový byt + oddelená nočná časť, č.25, Rezidencia Thermae

Ulica: Hviezdoslavova 3
Obec: Trenčianske Teplice
Okres: Trenčín
Kraj: Trenčiansky kraj
Druh: Byty
Typ: Predaj
Typ bytu: 1-izbový byt
Iné:
140 000 €

Popis nehnuteľnosti

Ponúkam na predaj moderný 1‑izbový byt s výborným dispozičným riešením, nachádzajúci sa na 2. poschodí v projekte Rezidencia Thermae. Byt je svetlý, vzdušný a vďaka veľkým oknám ponúka príjemný výhľad aj výborné presvetlenie počas celého dňa.

Dispozícia a výmery
(údaje podľa dokumentu byt-25.pdf)

  • Chodba (25.1) – 6,96 m²
  • Kúpeľňa s WC (25.2) – 4,51 m²
  • Kuchyňa (25.3) – 9,33 m²
  • Obývacia izba so stolovaním (25.4) – 15,66 m²
  • Nočná časť (25.5) – 8,46 m²

Úžitková plocha bytu spolu: 44,92 m² K bytu patrí aj skladovací box 1,57 m².

Stav a vybavenie - byt sa predava ako holobyt , ideálny pre tých, ktorí si chcú interiér dotvoriť podľa vlastného vkusu - moderný pôdorys s oddelenou nočnou časťou.

Byt 25
1 izba + oddelená nočná časť , 2 poschodie, celková výmera 46,49 m2

Byt 25 : https://www.rezidenciathermae.sk/byt-25/

Celú ponuku nájdete na :
www.rezidenciathermae.sk

PREDSTAVUJEME PROJEKT "REZIDENCIA THERMAE"  -  VÝNIMOČNÉ BÝVANIE V SRDCI KÚPEĽNÉHO MESTA 

Rezidencia THERMAE ponúka rekonštrukciu, prístavbu a nadstavbu budovy v známom kúpeľnom meste Trenčianske Teplice. Tento jedinečný objekt  je atraktívnou stavbou s výrazne funkcionalistickým vzhľadom, ktorý dotvárajú lukratívne terasy nad ustúpenými časťami podlaží ...
Trenčianske Teplice majú svoje neopakovateľné čaro. Kto ich nenavštívil, nedokáže si ho predstaviť.

Bližšie informácie nájdete na stránke projektu: www.rezidenciathermae.sk

Informácie: 0907 163 009

Vlastnosti

Status:
aktívne
Vlastníctvo:
korporácia
Úžitková plocha:
46.49 m2
Zastavaná plocha:
46.49 m2
Podlahová plocha:
44.92 m2
Skladová plocha:
1.57 m2
Stav:
novostavba
Počet izieb:
1
Pivnica:
áno
Rok výstavby:
2023
Rok kolaudácie:
2026
Počet poschodí od prízemia vyššie:
4
Pozícia:
vyššie poschodie
Poschodie:
2
Celková plocha:
46.49 m2
Pivnica plocha:
1.57 m2
Počet pivníc:
1
Orientácia:
juh
Vykurovanie - centrálne:
áno
Internet:
áno
Káblová TV:
áno
Optická sieť:
áno

Informatívna úverová kalkulačka

Pozrieť na mape

Maklér

Radi Vám poradíme

Podobné nehnuteľnosti